Agora des Arts

AGOR 2018-09-19 01 HD_J_1920x1080.jpg
 

AGORA DES ARTS

This project is a competition submittal for the recycling of a church into a new cultural centre in a Northern mining city of Quebec. The entrance at street level offers a transparent lobby with an inviting bar-cafe. The main performance space is housed in the former nave with new raked seating and cheerful colours.

 

Location 170, avenue Murdoch, Rouyn-Noranda, Quebec, Canada

Status Competition, Finalist 2018

Client Agora des Arts

Type Theatre, Performance, Cultural, Public

Building Area 2 080 m²

Seating Capacity 200

 

New Entrance and Cafe

A new contemporary glazed entry-hall-foyer is proposed at ground level with a setback from the street, creating a front terrace for people to gather.

The bar-cafe is located in a glass box that sits at the corner of the site. Topped with the company’s logo, its generates activity during the day. This is a new trend to maximize the use of theatres.

A series of point lights on the cafe ceiling creates a canopy like effect, with red glass panes associated with entertainment and pleasure.

 

The Foyer as a Gallery

The theatre’s foyer is a deambulation space linking the ticket booth, cloakroom and bar-café.

A door in the red wall gives access to the stair leading to the main performance space above.

 

The Auditorium in the Nave

Located in the nave of the former church, the auditorium is housed in a space with narrow proportions topped with a vaulted ceiling.

Red and black create a deep dramatic mood in the side aisles while a yellow and black printed image creates interest above, in the tradition of decorated ceilings often seen in more traditional theatres.

 

New Seating, Better Visibility

The cross section shows the new raked seating layout. To improve sightlines, a tiered disposition maximizes the visibility of the stage at the orchestra level as well as for the balcony.

The seating technology is based on a modular design with removable seats.

A cabaret configuration is thus possible with chairs and round tables.

 

Discreet Elements

The transformation keeps the church’s qualities while introduces contemporary elements that make it look and feel like a theatre.

The glass, the colours and the lighting bring new life to the building, making it the new home of the Agora of the Arts.

 

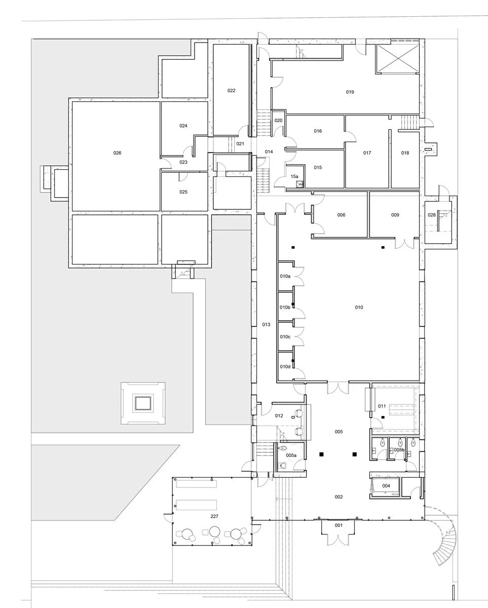
The Plans

The spaces are organized along the central axis aligned with the bell tower to reinforce the church’s geometry and create easy flow.

The main auditorium with the stage is located in the former church nave on the main level, one storey above the street. Below the auditorium, the community hall becomes the rehearsal room that can also be used for receptions in connection with the foyer.

The presbytery is used to house the backstage and support spaces like the dressing rooms, the green room and storage.

The administation offices are located on a separate floor of that connected building.

 

Project Team

Architect Atelier Paul Laurendeau | Artcad | Architects in joint venture
Project Architect and Lead Designer Paul Laurendeau

Structural and Civil Engineering Latéral s.e.n.c. + DWB consultants

Mechanical/Electrical Engineering Pageau Morel and Associates

Theatre Consultant Guy Simard

 
KNOW MORE ABOUT THIS PROJECT